Boheme в Ярославль — страница 66
3152 товара
-
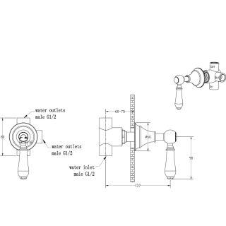
Италия
Артикул:
972-2-W
28547.00 руб
